Create your dream Whitsundays escape, minutes from the water
21 Arkhurst Road, Hideaway Bay QLD 4800
The Property.
Full of extraordinary high-yield investment potential, the offering is ready to be transformed into your perfect sanctuary. Featuring a prime 43.3-metre frontage, the property can accommodate multiple dwellings or one palatial residence tailored to your exacting tastes.
However you choose to utilise the property, stunning mountain and bushland surrounds establish 21 Arkhurst Road as an address to be envied. Here, feel connected to the Whitsunday’s famed scenery, enjoy incredible privacy and experience the tranquil atmosphere that this incomparable location affords.
Close to popular Hideaway Beach and the charming coastal hamlet of Dingo Beach, this phenomenal offering is also just a scenic 50-kilometre drive from world-famous Airlie Beach. Bowen and Prosperine’s conveniences are also easily accessible from this address, in addition to Whitsunday Coast Airport.
Falling within the Proserpine State School and Proserpine State High School catchment areas, this sensational property is also a short commute from Saint Catherine’s Catholic College, Whitsunday Christian College and Saint Mary’s Catholic Primary School. Do not miss this wonderfully exclusive opportunity – call to arrange an inspection today.
Disclaimer
This property is being sold by auction or without a price and therefore a price guide cannot be provided. The website may have filtered the property into a price bracket for website functionality purposes.
Disclaimer:
We have in preparing this advertisement used our best endeavours to ensure the information contained is true and accurate, but accept no responsibility and disclaim all liability in respect to any errors, omissions, inaccuracies or misstatements contained. Prospective purchasers should make their own enquiries to verify the information contained in this advertisement.
Features.
Property Features
- Land: 1,301 m²
Features.
Property Features
- Land: 1,301 m²
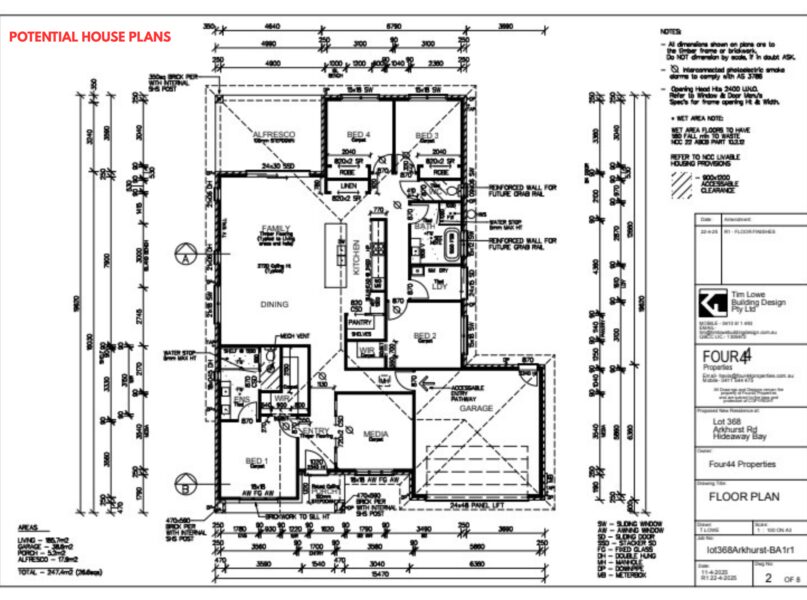
Floor Plan.




















